Um- und Ausbau Stadthaus, Zürich ZH

Laufendes Projekt | Baujahr: 2025/2026

  • Termin-/ Kostenplanung
  • Ausschreibung
  • Vergabe
  • Bauleitung

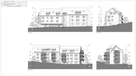
Neubau MFH, Zürich-Seebach

Laufendes Projekt | Baujahr: 2025/2026

  • Termin-/ Kostenplanung
  • Ausschreibung
  • Vergabe
  • Bauleitung

Umbau EFH, Rudolfstetten

Abgeschlossenes Projekt | Baujahr: 2022

  • Architektur
  • Pläne erstellen
  • Termin-/ Kostenplanung
  • Ausschreibung
  • Vergabe
  • Bauleitung

Aufstockung MFH Zürich-Unterstrasse

Abgeschlossenes Projekt | Baujahr: 2020/2021

  • Termin-/Kostenplanung
  • Ausschreibung
  • Vergabe
  • Bauleitung

Neubau EFH Zürich-Seebach

Abgeschlossenes Projekt | Baujahr: 2018

  • Baufreigabe
  • Termin-/Kostenplanung
  • Ausschreibung
  • Vergabe
  • Bauleitung
  • Bestandesaufnahme/Rissprotokoll

Dachausbau EFH Zürich-Seebach

Abgeschlossenes Projekt | Baujahr: 2017

  • Architektur
  • Pläne erstellen
  • Termin-/Kostenplanung
  • Ausschreibung
  • Vergabe
  • Bauleitung
  • Eingabe energetische Förderbeiträge

Totalsanierung Gemeindehaus, Wallisellen

Abgeschlossenes Projekt | Baujahr: 2023/2024

Als Subunternehmer beim Architekturbüro Bosshard und Partner 

  • Terminplanung
  • Bauleitung

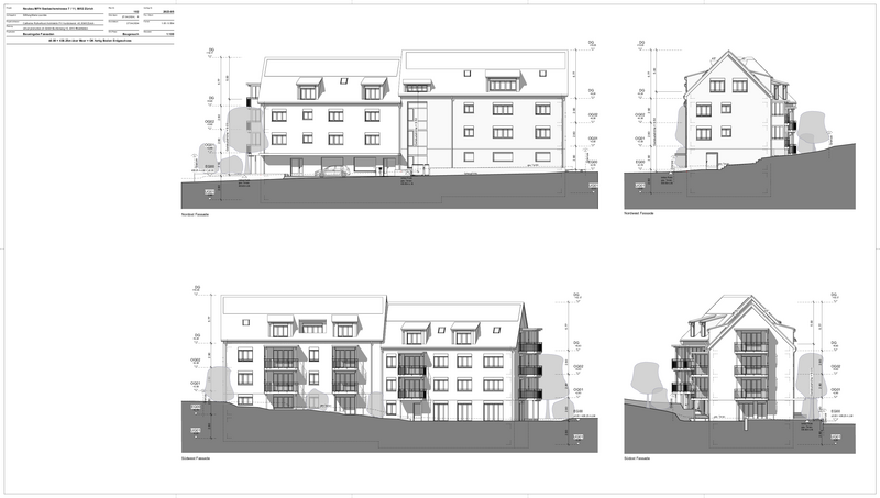
Neubau MFH, Zürich-Seebach

Abgeschlossenes Projekt | Baujahr: 2021/2022

Fotos von Miriam Rutherfoord

  • Termin-/ Kostenplanung
  • Ausschreibung
  • Vergabe
  • Bauleitung

 

Mieterausbau Augenarztpraxis Zürich-Örlikon

Abgeschlossenes Projekt | Baujahr: 2019

  • Architektur
  • Baueingabe
  • Pläne erstellen
  • Termin-/ Kostenplanung
  • Ausschreibung
  • Vergabe
  • Bauleitung

Totalsanierung EFH Nussbaumen

Abgeschlossenes Projekt | Baujahr: 2019

  • Architektur
  • Baueingabe
  • Pläne erstellen
  • Termin-/ Kostenplanung
  • Ausschreibung
  • Vergabe
  • Bauleitung